1
Anzahl der Objekte: 1 | 1
Obj.: 1 | 1

Gut geschnittene Erdgeschosswohnung in attraktiver Lage

Außenansicht 1 Erdgeschosswohnung Wacken
Außenansicht 1
272.000,- €
 
Außenansicht 2 Erdgeschosswohnung Wacken
Außenansicht 2
Küchen- & Wohnbereich 01 Erdgeschosswohnung Wacken
Küchen- & Wohnbereich 01
Küchen- & Wohnbereich 02 Erdgeschosswohnung Wacken
Küchen- & Wohnbereich 02
Schlafzimmer Erdgeschosswohnung Wacken
Schlafzimmer
Kinder- / Arbeitszimmer Erdgeschosswohnung Wacken
Kinder- / Arbeitszimmer
Badezimmer mit Dusche Erdgeschosswohnung Wacken
Badezimmer mit Dusche
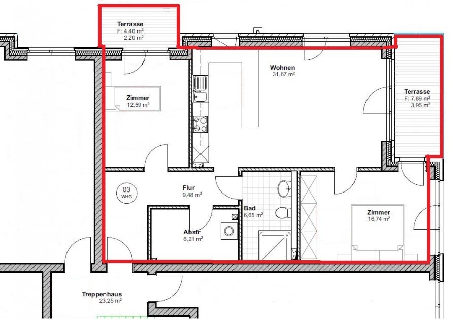
Grundriss WHG 03 Erdgeschosswohnung Wacken
Grundriss WHG 03

Objektart

Erdgeschosswohnung

Adresse

25596 Wacken, Storchenweg 2

Objektdaten

Objekt-Nr. ES_W03
Wohnfläche (ca.) 89,49 m²
Zimmer 3
Kaufpreis 272.000,- €
Informationen
Nutzfläche (ca.)
93,44 m²
bezugsfrei ab
01.08.2025
Ausstattung
Garage / Stellplatz
Denkmalgeschützt
rollstuhlgerecht
als Ferienimmobilie geeignet
Details
Etage
1
Garage / Stellplatz
Kauf 7.500,- €
Badezimmer
1

Diese exklusive Erdgeschosswohnung in einem modernen Mehrfamilienhaus wird voraussichtlich im August 2025 bezugsfertig. Das Gebäude wurde nach den neuesten energetischen Standards als KfW 40EE Energieeffizienzhaus errichtet, was nicht nur eine umweltfreundliche Bauweise garantiert, sondern auch für eine sehr gute Energieeffizienz sorgt. Durch den Anschluss an das Fernwärmenetz der Renergiewerke Wacken (Wind- und Solarenergie) und eine dezentrale Be- und Entlüftung wird ein optimales Raumklima gewährleistet.

Mit einer großzügigen Wohnfläche und einer durchdachten Raumaufteilung bietet diese Wohnung viel Platz. Der lichtdurchflutete, offene Wohnbereich besticht durch bodentiefe Fenster mit viel Tageslicht und bietet einen freien Blick auf die Umgebung. Besonders hervorzuheben ist die zweiteilige Terrasse, die reichlich Platz für Ihre persönliche Freiluftoase bietet.

Zusammenfassung der Ausstattung:

- Fahrstuhl in alle Etagen
- Parkettfußboden im Dielenformat
- hochwertige Badkeramit und großformatige Fliesen
- Fußbodenheizung in allen Räumen
- großzügige Terrassenflächen
- Wände weiß gestrichen
- ausreichend Steckdosen/Anschlüsse
- eigener Außenstellplatz
- Fahrradunterstand
usw.

Wacken liegt ca. 12 km nordwestlich von Itzehoe, 6 km östlich des Nord-Ostsee-Kanals und ist durchaus über die Landesgrenzen Schleswig-Holsteins bekannt durch das Wacken Open-Air-Festival.
In Wacken fühlen sich nicht nur Musik- und Naturliebhaber wohl, sondern auch Berufspendler, die durch die Nähe der A23, sowohl die Kreisstadt Itzehoe, als auch Hamburg schnell erreichen können. Über die B77 erreichen Sie die Stadt Kiel ebenfalls in ca. einer Stunde Fahrtzeit. Die umliegenden Parks und Naturschutzgebiete laden zu entspannenden Spaziergängen, Fahrradtouren oder Picknicks ein. Die klaren Gewässer der Region sind ideal für Angler und Wassersportbegeisterte. An heißen Sommertagen verschafft zudem ein Freibad den Bewohnern von Wacken die wohlverdiente Abkühlung.
Neben der Basismedizinischen Versorgungen und dem Altenpflegeangebot, bietet der Ort seinen Bewohnern Supermärkte, eine Apotheke sowie diverse Dienstleister, Post- und Bankfilialen, die sich direkt in Wacken befinden und in nur wenigen Minuten zu erreichen sind. Die jüngsten Bewohner haben die Möglichkeit, eine Grundschule, die auch Betreuung nach dem Unterricht anbietet, sowie einen Kindergarten im Ort zu besuchen. Weitere Bildungseinrichtungen finden sich in den umliegenden Gemeinden und Städten.

Wir stehen seit 1978 für professionelle, ehrliche und seriöse Beratung.
Sollten Sie Informationen zu dieser Immobilie wünschen, so teilen Sie uns bitte Ihren Namen, Telefonnr. und E-Mail Adresse mit.
Besuchen Sie uns auch gerne auf unserer Internetseite unter www.passlack.de oder rufen Sie uns unter der Nummer 040-7137820 an.

Ansprechpartner

Herr Ulrich Wessel
Telefon: 040 / 7137820
Telefax: 040 / 71378224
info@passlack.de

Energieausweis (Bedarfsausweis)

Energieausweis-Skala bis 790px
Energieausweis Positions Pfeil bis 790px 17,43 kWh / (m²*a) Endenergiebedarf
Energieausweis-Skala bis 623px
Energieausweis Positions Pfeil bis 623px 17,43 kWh / (m²*a) Endenergiebedarf
Energieausweis-Skala bis 768px
Energieausweis Positions Pfeil bis 768px 17,43 kWh / (m²*a) Endenergiebedarf
Energieausweis-Skala bis 481px
Energieausweis Positions Pfeil bis 481px 17,43 kWh / (m²*a) Endenergiebedarf
Energieausweis-Skala bis 320px
Energieausweis Positions Pfeil bis 320px 17,43 kWh / (m²*a) Endenergiebedarf
Weitere Informationen
BefeuerungFernwärme
Energieverbrauch für Warmwasserenthalten
Energieausweis Baujahr2023
HeizungFernheizung

Ich bin damit einverstanden, dass mir Karten von Google angezeigt werden. Es gelten die Datenschutzbedingungen von Google (https://policies.google.com/privacy).

Ich bin einverstanden

Objektanfrage

Sie haben noch Fragen zu dem Angebot oder wollen einen Besichtigungstermin vereinbaren, dann füllen Sie einfach das untenstehende Formular vollständig aus und wir setzen uns schnellstmöglich mit Ihnen in Verbindung.
* Pflichtfelder
Verwendung von Cookies - Um unsere Webseite für Sie optimal zu gestalten und fortlaufend verbessern zu können, verwenden wir Cookies. Durch die weitere Nutzung der Website stimmen Sie der Verwendung von Cookies zu. Weitere Informationen zu Cookies erhalten Sie in unserer Datenschutzerklärung.
OK